1. a. 问题点: 折弯后工件在折弯处变形.

b. 发生原因: 出现变形主要是由于折弯速度快,而手没有跟上工件折弯变形的速度导致的.
c. 解决方法: 降低折弯速度,手扶工件与工件同时进行.
2. a. 问题点: 折弯较长的工件,会出现角度一头大,一头小.

b. 出现这种情况,一般有以下几种情况造成:
(1). 材料厚度不一致,一端厚一端薄.
(2). 上模由于磨损,一端高度尺寸比另一端小.
(3). 中间块不平衡,不在同一水平上.
c. 解决方法:
(1). 反馈给激光,让其注意选料.
(2). 换刀模.
(3). 调整中间块
3. a. 问题点: 在折弯Z折时,有时工件会变形.

b. 发生原因: 出现这种情况主要是由于C处为后定规定位,折弯B处时,工件折曲上升运动,撞在后定规上,被后定规挤住.折弯成型后,D处就被挤变形.
c. 解决方法: 采用后定规后拉功能.
4. a. 问题点: 折弯尺寸较小,不好定位,上模容易压到后定规上.

b. 发生原因: 因为t=0.8,按下模选用原则,v=5×0.8=4mm.4v中心到边的距离为3.5mm,而2.9mm内尺寸为2.9-0.8=2.1mm,折弯尺寸在v中心线到边的距离之内,正装是无法定位.采用下模反装,上模将压住后定规,正反装都行不通,要想其它的方法. .
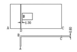
c. 解决方法:可以下模反装.在后定规前加一个垫片(薄薄的),从而使后定规后退,避开上模(如图b.)

5. a. 问题点: 在板料的中间开有一方孔,方孔边缘到折弯线的尺寸很近,如果直接折弯,方孔边缘到折弯线处的料将折不起来.

b. 原因分折: 由于B处的尺寸只有1.3mm,料厚为0.8mm,选用的v宽为4v. 由于1.3mm<4v/2,所以折不起来.
c. 解决方法:
(1). 将此处料磨平至折弯线处.
(2). 将折弯线处先压线,然后再折弯.
6. a. 问题点: 工件上有孔,孔到折弯线处的距离很近,直接折起,孔将会变形. 如图:

b. 解决方法:
(1). 在折弯线处打压线,再折弯起来.(如图a.)
(2). 采用激光在折弯线处割线,从而避免拉料.(图b.)
(3). 若生产量不多而又要求美观,应采取LASER先割小孔,再进行折弯,最后扩孔的办法.