半导体工艺设备为半导体大规模制造提供制造基础。摩尔定律,给电子业描绘的前景,必将是未来半导体器件的集成化、微型化程度更高,功能更强大。这里先介绍半导体工艺的头道工序——单晶体拉胚的单晶炉。
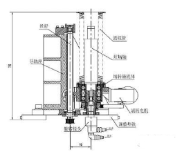
单晶炉 单晶炉,全自动直拉单晶生长炉,是一种在惰性气体(氮气、氦气为主)环境中,用石墨加热器将多晶硅等多晶材料熔化,用直拉法生长无错位单晶的设备。 单晶硅炉型号有两种命名方式,一种为投料量,一种为炉室直径。比如 120、150 等型号是由投料量决定, 85 炉则是指主炉筒的直径大小。 单晶硅炉的主体构成由主机、加热电源和计算机控制系统三大部分组成。 单晶硅片工艺流程 硅,Si,地球上含硅的东西很多,好像90%以上都是晶硅的,也就是单晶硅。太阳能级别的硅纯度6N以上就可以了。 开始是石头,(石头都含硅),把石头加热,变成液态,再加热变成气态,把气体通过一个密封的大箱子,箱子里有N多的子晶加热,两头用石墨夹住,气体通过这个箱子,子晶会把气体中的一种吸符到子晶上,子晶慢慢就变粗了,因为是气体变固体,所以很慢,一个月左右,箱子里有就了很多长长的原生多晶硅。 单晶硅片由此进入生产流程: 1、酸洗:使用稀硝酸HNO3,进行清洗,去除表面杂质及提炼时产生的四氯化硅。 2、清洗:清洗硅料经过酸洗后的残留杂质。 3、单晶硅料烘干:去除水分。 4、挑料:区分P型,N型硅料。 5、配料:对拉晶的硅料型号进行匹配。 6、单晶炉拉晶: 7、硅棒检测:检查有无位错,棱线断等现象。 8、开断:将单晶硅棒用带锯条切割成四方体。 9、包装:将开断后的单晶硅棒进行包装,送至下一道工序 10、磨圆:将单晶硅棒四个直角进行磨圆。 11、多线切割:瑞士的264,265。日本的PV800,MDM442DM设备进行切割 0.33mm。 12、清洗: 13、单晶硅片检测: 单晶炉的结构 单晶炉炉体(包括炉底板、主炉室、炉盖、隔离阀室、副炉室、籽晶提升旋转机构和坩埚提升旋转机构)由304L不锈钢制造。所有腔体都经过缺陷炉室检查和探伤检验,并且经过0.6MPa水压试验和氦质谱检漏仪检漏。 一、主炉体构造 1、基座与炉底板 炉底板设计成平板式,具有双层结构,通水冷却。四只电极穿过底板,在坩埚提升机构的波纹管连接处有一个水冷却法兰区。 2、主、下炉室 主、下炉室为双层筒状结构,两端为法兰结构,通水冷却,并有隔水条保证冷却均匀。主炉室设置了一个测温计窗口,用于测量加热器温度。下炉室有抽真空和真空计接口(0~100Torr和0~1Torr)。下炉室在正常操作过程中始终用压板固定在炉底板上,通过氟橡胶O型圈实现真空密封。 3、炉盖 炉盖为炉体和隔离阀座提供了一个过渡区。炉盖采用标准炉盖制造,双层通水冷却。在炉盖上设有一个操作者观察窗口(类椭圆形)和一个直径控制窗口(圆形)。操作者观察窗口允许单晶直径测量范围最大至10”,氩气入口设置在炉盖的喉部。 4、隔离阀座 隔离阀座为双层水冷却结构,前圆后方,正前方设有一道圆门,可以通过圆门方便拆卸和更换籽晶夹头。圆门中心设有圆形观察窗。隔离阀座为隔离阀提供了安装及活动空间,隔离阀的作用是为籽晶或单晶提供进入副炉室的通道,同时可以维持上下炉室的局部压力和温度。隔离阀是翻板阀结构,阀板和阀体均是固定式双层结构,通水冷却。隔离阀座侧面设有两个籽晶位置检测窗口(激光定位),后部有一个氩气入口,可以实现快充氩气。 5、副炉室 副炉室为圆筒形腔体,双层结构,水冷却。副炉室上部前方设有一个圆形法兰,可以打开用于清理腔体上部,法兰中心设有圆形观察窗。副炉室上部是水平调整机构(见附件12),设有一个氩气入口(正常拉晶时的氩气通道)、一个抽真空接口(当隔离阀关闭时副炉室抽真空用)和一个真空计接口(0~1000Torr)。 二、籽晶提升旋转机构 籽晶旋转提升机构俗称提拉头,主要由安装盘、减速机、籽晶腔(真空腔)、划线环、快速电机、慢速电机、旋转电机、离合器、磁流体、钢缆、籽晶称重头、软波纹管等其他部件组成 。 提拉头的主要功能有使籽晶旋转 提升,并保证匀速旋转变速提升,且记录单晶重量 位移等数据。 在籽晶提升机构里采用钢索卷筒提升钢丝绳。整个提升装置在一根中空的轴上旋转,该机构经过静平衡和动平衡测试,在整个运行范围内可实现无振动平稳的运行。旋转密封和提升进给密封均采用磁流体密封。提升腔、离合器腔、称重腔和晶升底板均由高强度铝制造而成。 三、副炉室旋转机构 旋转机构采用直流伺服电机,双级蜗轮蜗杆减速,加强型同步带传动,可在副炉室提升到位时的缓慢旋开和快速旋闭,实现取单晶过程的自动化动作。 四、坩埚提升旋转机构 坩埚提升机构的垂直方向采用了滚珠直线导轨和高精度丝杆,在高负载甚至电机断电的情况下实现自锁。坩埚旋转采用可承受高转矩的多碶带驱动,从而消除了齿形带传动的震颤。旋转密封采用可承受轴向力磁流体密封,垂直密封采用不锈钢波纹管。 坩埚提升机构中直线导轨座和底板成90°固定,两者间采用筋板支撑,从而提高整体的刚度,避免由侧向力矩引起的直线导轨和丝杆的变形。 在单晶生长过程中会形成硅氧化物(SiO)小颗粒并沉积在波纹管中。这些氧化物应被定期清除出去。将波纹管从坩埚轴密封一恻松开。将它在适当位置系好以防止它往下弹回去。 用真空吸尘器清除所有的灰尘,包括磁流体密封座的密封表面上的灰尘檫拭干净后装回波纹管。 五、真空系统 真空系统各零件由不锈钢制成,所有连接都采用法兰式氟橡胶O型密封圈,真空阀采用的是高真空气动球阀。 1 主真空系统 主真空系统提供了为各腔体抽真空或者当隔离阀关闭时仅为上下炉室抽真空的阀和管道。为控制真空腔独立气流压力提供了自动压力控制节流阀。 2 辅助(副炉室)真空系统 辅助真空系统提供了将副炉室从常压抽至与上下炉室相等压力的阀和管道。在隔离步骤中,它通常是最先使用的,一根柔性波纹管为提升和旋转副炉室提供柔性连接。 六、氩气系统 氩气系统由不锈钢管、电磁截止阀、质量流量控制器、减压器、手动截止阀和柔性波纹管道构成,在炉子的运行过程中向炉子内提供氩气。炉子上有两个氩气入口(副炉室顶部和炉盖喉部)由质量流量控制器控制,另一个氩气入口(隔离阀座后部)是快充口,不由质量流量控制器控制。氩气由副炉室顶部的分流环分配以减少副炉室内的紊流。 1 质量流量控制器 质量流量控制器为氩气进入主炉体提供精密的流量控制。 2 密封和管路 氩气系统在不锈钢管、电磁截止阀和质量流量控制器的连接处采用金属卡套密封,柔性不锈钢波纹管间采用快卸法兰式氟橡胶O型密封圈。整个氩气系统经过氦质谱检漏仪检漏,在1×10-8CC(std.atm.)/sec(He)范围内未查出泄漏。 冷却系统的设计目的是为炉子提供一个安全良好的运行环境,上炉室和副炉室采用不锈钢安全阀进行过压保护。腔体外部出水口处设置安全温度监测,如果温度超过55°C,就会向操作者发出警告。冷却水流量传感器装在炉体总回水管,其作用是万一水流断开后30秒切断加热器电源。 单晶炉生产工艺 生产工序:加料→熔化→缩颈生长→放肩生长→等径生长→尾部生长 (1)加料:将多晶硅原料及杂质放入石英坩埚内,杂质的种类依电阻的N或P型而定。杂质种类有硼,磷,锑,砷。 (2)熔化:加完多晶硅原料于石英埚内后,长晶炉必须关闭并抽成真空后充入高纯氩气使之维持一定压力范围内,然后打开石墨加热器电源,加热至熔化温度(1420℃)以上,将多晶硅原料熔化。 (3)缩颈生长:当硅熔体的温度稳定之后,将籽晶慢慢浸入硅熔体中。由于籽晶与硅熔体场接触时的热应力,会使籽晶产生位错,这些位错必须利用缩劲生长使之消失掉。缩颈生长是将籽晶快速向上提升,使长出的籽晶的直径缩小到一定大小(4-6mm)由于位错线与生长轴成一个交角,只要缩颈够长,位错便能长出晶体表面,产生零位错的晶体。 (4)放肩生长:长完细颈之后,须降低温度与拉速,使得晶体的直径渐渐增大到所需的大小。 (5)等径生长:长完细颈和肩部之后,借着拉速与温度的不断调整,可使晶棒直径维持在正负2mm之间,这段直径固定的部分即称为等径部分。单晶硅片取自于等径部分。 (6)尾部生长:在长完等径部分之后,如果立刻将晶棒与液面分开,那么效应力将使得晶棒出现位错与滑移线。于是为了避免此问题的发生,必须将晶棒的直径慢慢缩小,直到成一尖点而与液面分开。这一过程称之为尾部生长。长完的晶棒被升至上炉室冷却一段时间后取出,即完成一次生长周期。

















